土地・戸建て情報– category –
-
土地・戸建て情報
加古川市加古川町稲屋中古戸建ご紹介!!
こんにちは!!チェリーブロッサムです♪本日は兵庫県加古川市加古川町稲屋の中古戸建をご紹介いたします☆彡 【】 カーポート付き駐車場☆★システムキッチン、追い焚きなど設備充実♪ 価格1180万円間取り4LDK土地面積115.96㎡建物面積95.22㎡築年月1998年3月... -
土地・戸建て情報
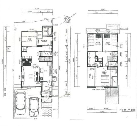
加古川市加古川町美乃利中古戸建ご紹介!!
こんにちは!!チェリーブロッサムです♪本日は兵庫県加古川市加古川町美乃利の中古戸建をご紹介いたします☆彡 【】 JR加古川駅まで徒歩17分の好立地☆★日岡山公園近いです♪ 価格2680万円間取り4LDK土地面積135.05㎡建物面積103.50㎡築年月平成25年12月階数2... -
土地・戸建て情報
加古川市加古川町大野中古戸建ご紹介!!
こんにちは!!チェリーブロッサムです♪本日は兵庫県加古川市加古川町大野の中古戸建をご紹介いたします☆彡 【】 75,000円で賃貸中!!2024年リフォーム済(^^♪ 価格900万円間取り3LDK土地面積79.4㎡建物面積77.35㎡築年月昭和49年8月階数2階建て建物構造木... -
土地・戸建て情報
加古郡播磨町東本荘中古戸建ご紹介!!
こんにちは!!チェリーブロッサムです♪本日は兵庫県加古郡播磨町東本荘の中古戸建をご紹介いたします☆彡 【】 大手ハウスメーカー施工!!オール電化◎ 価格2350万円間取り4SLDK土地面積142.15㎡建物面積110.43㎡築年月平成22年9月階数2階建て建物構造木造... -
土地・戸建て情報
加古郡播磨町本荘中古戸建ご紹介!!
こんにちは!!チェリーブロッサムです♪本日は兵庫県加古郡播磨町本荘の中古戸建をご紹介いたします☆彡 【】 播磨町駅まで徒歩13分◎収益物件としてもオススメです☆★ 価格198万円間取り5DK土地面積208㎡建物面積84.29㎡築年月1949年1月階数1階建て建物構造... -
土地・戸建て情報
加古郡播磨町古田中古戸建ご紹介!!
こんにちは!!チェリーブロッサムです♪本日は兵庫県加古郡播磨町古田の中古戸建をご紹介いたします☆彡 【】 現在入居中◎利回り12%☆★ 価格770万円間取り3LDK土地面積105㎡建物面積94.81㎡築年月1993年8月階数2階建て建物構造木造用途地域第2種低層住居専... -
土地・戸建て情報
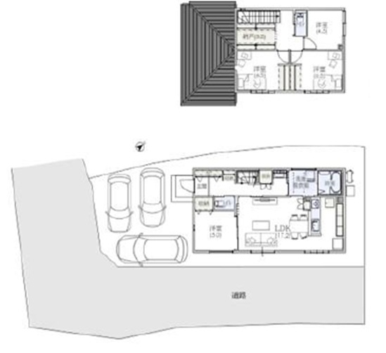
加古郡播磨町二子中古戸建ご紹介!!
こんにちは!!チェリーブロッサムです♪本日は兵庫県加古郡播磨町二子の中古戸建をご紹介いたします☆彡 【】 築浅物件☆★オール電化◎駐車場3台分◎ 価格4980万円間取り3LDK土地面積141.82㎡建物面積101.74㎡築年月2025年2月階数2階建て建物構造軽量鉄骨造用... -
土地・戸建て情報
加古郡播磨町宮西中古戸建ご紹介!!
こんにちは!!チェリーブロッサムです♪本日は兵庫県加古郡播磨町宮西の中古戸建をご紹介いたします☆彡 【】 大手ハウスメーカー施工!!庭付き◎ 価格2280万円間取り3LDK土地面積184.13㎡建物面積105.25㎡築年月平成23年2月階数2階建て建物構造軽量鉄骨造... -
土地・戸建て情報
加古郡播磨町古田中古戸建ご紹介!!
こんにちは!!チェリーブロッサムです♪本日は兵庫県加古郡播磨町古田の中古戸建をご紹介いたします☆彡 【】 太陽光発電システム付☆★築浅物件で設備充実♪ 価格2280万円間取り4LDK土地面積165.06㎡建物面積98.54㎡築年月2020年9月階数2階建て建物構造木造用... -
土地・戸建て情報
加古郡播磨町古宮中古戸建ご紹介!!
こんにちは!!チェリーブロッサムです♪本日は兵庫県加古郡播磨町古宮の中古戸建をご紹介いたします☆彡 【】 播磨町駅まで徒歩7分☆★ 価格850万円間取り4K土地面積170.77㎡建物面積82.88㎡築年月1968年5月階数1階建て建物構造木造用途地域第一種中高層住居...
