明石市二見町東二見テナント募集物件ご紹介!

こんにちは♪チェリーブロッサムです(*^-^*)
本日は兵庫県明石市二見町東二見の貸店舗をご紹介いたします☆彡

明石市二見町東二見 貸店舗情報

賃料8.25万円
共益費0円
敷金16.5万円
礼金16.5万円
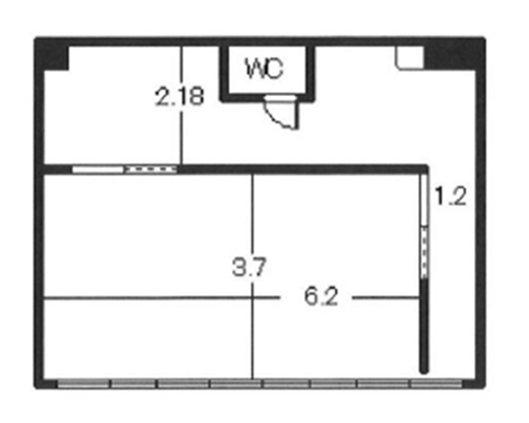
使用面積40㎡
階数1階部分
築年月1987年8月
建物構造鉄筋コンクリート造
用途地域準住居地域
住所兵庫県明石市二見町東二見

物件の詳細を知りたい方、実際に室内を見学してみたい方など、お気軽にお問合せくださいませ(*^^*)♪

チェリーブロッサム株式会社では加古川・明石エリアを中心に、土地/建物の購入・売却・リフォーム、賃貸事業用物件のご紹介、住宅ローンのご相談まで、お住まい全般についてお客様のニーズに合わせてお手伝いさせていただきます!お気軽にご相談くださいませ(^^)/

お問い合わせ

チェリーブロッサム(株)
兵庫県加古川市野口町良野1582番地 大溝office1階

TEL:079-456-7600

加古川市はこんな街

加古川市は、自然と利便性のバランスが取れた、暮らしやすい街です。市内を流れる加古川を中心に、公園や緑が多く、落ち着いた住環境が広がっています。

JR加古川駅を中心に商業施設や飲食店が充実しており、通勤・通学や買い物にも便利。神戸や姫路へのアクセスも良く、幅広い世代から人気があります。

子育て支援や医療体制も整っており、ファミリー層はもちろん、単身の方やご高齢の方にも安心。長く住み続けたいと思える魅力が詰まった街です。

よかったらシェアしてね!
  • URLをコピーしました!
  • URLをコピーしました!